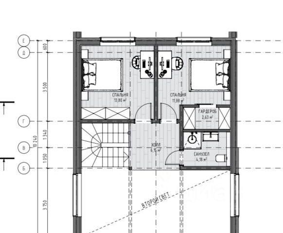
Id 22797. ЭКСКЛЮЗИВ! ДОМ С КАМИНОМ В СОБСТВЕННОМ ЛЕСУ Вдали от городской суеты, в престижном и тихом поселке бизнес-класса на Новой Риге, продается уютный и функциональный дом. В меру брутальный с минимум декора и элементами ар-деко от дизайнеров Марины Пенние и Романа Воронова. Игра фактур и цвета- одно из главных декоративных решений в этом проекте. Дом построен компанией Honka из безусадочного клееного бруса с односкатной крышей. Спроектирован линейно и разделен на две части- основную и техническую. Открытое кострище на веранде оснащено вытяжным коробом Diamond Grill по эскизам дизайнеров специально для этого проекта, каркас дивана на террасе Honka, подушки и стол Somethinggood. В жилой зоне дубовый паркет Cowic В санузлах керамогранит Peronda Кухня, диван, библиотека- Somethinggood Люстра в гостиной- Smoky Lounge Печь-камин Invicta Bradford Оконный текстиль и деревянные жалюзи- Kulagina Design Общая площадь 270 м2 включает: Гостиная-кухня-столовая 47,4 Спальни 15,3 и 13,5 Санузлы 5,2 и 5,0 Прихожая 4,3 Гардеробная 5,3 Постирочная 3,9 Тех.пом. 6,0 Кладовая 4,6 Зона барбекю 40,3 Терраса 122,5 Поселок расположен на 56-м км скоростного Новорижского шоссе, заезд со стороны д. Кострово обеспечивает свободный выезд на Новую Ригу в любое время суток, дорога до центра Москвы занимает, в среднем, не более часа. Обжитой поселок с благоустроенным лесным парком в 6 га с игровыми и спортивными площадками, прогулочными зонами и зонами отдыха, с беседками и скамейками, продуктовый магазин при въезде на КПП. В 5 мин пешком отель Хилтон Грин с бассейном, SPA, саунами, озером и пляжем. Престижная частная гимназия им. Б. Пастернака в 5 мин езды. Отдельно выделена котельная со всеми коммуникациями и самым передовым оборудованием. На территории расположен домик для персонала, пригодный для круглогодичного проживания. Въезд через откатные ворота, парковка на 3 м/м. Площадь участка 47.7 соток. На территории вековые сосны, липы, ели и березы. Технические характеристики: Фундамент свайно-ростверковый с монолитной плитой Вентиляция по инженерному проету Теплый пол и внутрипольные конвекторы Вода-скважина, четырехступенчатая система очистки Отопление , горячая вода и теплый пол от газового котла Канализация центральная Система видеонаблюдения Арт. 128603403













































































































