


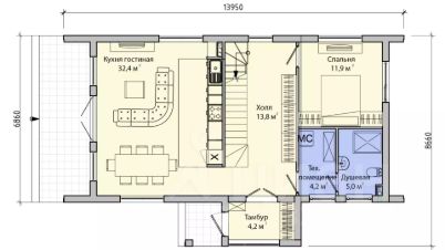
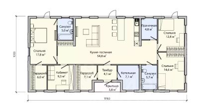
Застройщик продает без посредников современный двухэтажный жилой дом ПБ-134. 10 на 10 метров, площадью 133 м2 с 4 спальнями, террасой и котельной в обжитом поселке бизнес-класса Берег Песочной по Новой Риге, на участке ИЖС 5 соток. Заведены все коммуникации, дом полностью готов для работ по внутренней отделке. Наружные стены коттеджа из трехслойных железобетонных панелей БЭНПАН Премиум толщиной 270 мм и БЭНПАН+ с встроенной теплоизоляцией. Внутренние перегородки - БЭНПАН 100 мм. Высота стен 3,05 метра. Внешняя отделка фасада покраска и штукатурка. Преимущества дома из ЖБИ панелей: - Энергоэффективность теплоизоляция стен с утеплителем. В доме зимой тепло, а летом прохладно, комфортный микроклимат круглый год и экономия на отоплении и кондиционировании; - Высокие потолки много пространства и воздуха вокруг; - Отличная шумоизоляция. Утеплитель ЖБИ панелей хорошо поглощает звук. В доме всегда будет тихо; - Встроенные заводские каналы для коммуникаций. Не нужно штробить бетон, трубы и проводка будут скрыты внутри стен; - Долговечность. Панели из фибробетона устойчивы к погодным воздействиям, жилье из них рассчитано на срок эксплуатации более 100 лет. Дом послужит вам и вашим детям, сохраняя прочность и безопасность. Что входит в стоимость предложения: - Земельный участок 5 соток в коттеджном поселке; - Дом по проекту ПБ-134 в комплектации "теплый контур" (фундамент, коробка дома, утепленная кровля, отделка фасада); - Оконные блоки с ламинацией фирмы REHAU 70 серия; - Входная утепленная дверь с терморазрывом. Заведены в дом: - водопровод; - канализация; - электричество, выделенная мощность 10 кВт; - кабель (оптоволокно) высокоскоростного интернета; - Газ: по границе участка; - Отмостка из брусчатки по периметру дома; - Вымощенное брусчаткой место для автомобиля; - Забор по периметру участка с установкой почтового ящика. О поселке: Поселок площадью 28 Га расположен в Истринском районе Московской области, в 45 км от МКАД (рядом Сысоево, Духанино, КП Сысоево парк). Земля комплекса, относится к категории земель населенных пунктов. У каждого дома свой почтовый адрес, жители поселка могут оформить прописку. Вдоль границы ЖК протекает река Песочная, в которой водится рыба, и расположен благоустроенный парк, оборудованный всем необходимым для прогулок и занятий спортом. Есть пруд с пляжем, места для рыбалки и отдыха на природе. В 10 км от поселка находится город Истра с торговыми центрами, школами, поликлиниками, аптеками. В КП "Берег Песочной" легко проехать по Волоколамскому, Пятницкому, Новорижскому шоссе и с Малой Московской кольцевой автодороги. Все наши проекты можно посмотреть на сайте коттеджного поселка "Берег Песочной" Напишите нам в чaт или позвоните: Расскажем о доме и поселке Вышлем дополнительные фотографии дома и видео Запишем на просмотр


































































































