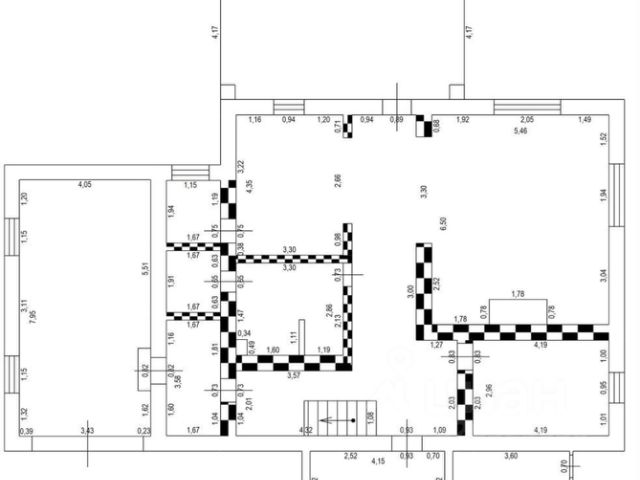
Лот: 34138. БЕЗ КОМИССИИ. Дом в тихом поселке рядом с лесным массивом. Год постройки — 2008. Материал постройки дома — газосиликатные блоки с фасадной штукатуркой. Вокруг — тишина, лес и дружные соседи. Что стоит особенно подчеркнуть — действительно очень тихое место, где абсолютно не слышно шума дорог. Большой участок граничит с лесом. На границе участка и леса — небольшое лесное озеро (можно разводить рыбу). Дом с удобной планировкой, строился для проживания своей семьи, как принято говорить — с хорошей энергетикой. А большой зелёный участок позволит вашим детям много бегать и играть на свежем воздухе под пение птиц и шум леса. 1 этаж — гараж с автоматическими воротами, кухня-столовая, большая гостиная с камином, гостевая спальня, кладовая, котельная, санузел, сауна, открытая веранда; 2 этаж — три спальни, санузел с душевой кабиной, большая бильярдная. На участке — парковка для трёх автомобилей, автоматические ворота. В пяти минутах езды от поселка — Сбер-университет, частные детские сады, школы, торговый центр, фитнес-центр и др.






















































































