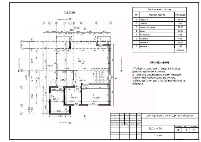
Срочная продажа нового жилого дома 150м² рядом с городом Истра и Новой Ригой! Объект подходит под "Семейную" ипотеку, весь комплект документов в наличии, полная стоимость в ДКП. Быстрый выход на сделку. К вашему вниманию предлагается просторный дом с чистовой отделкой, идеально подходящий для постоянного проживания или загородного отдыха, а также отличный вариант для инвестиций в дальнейшем посуточной или на долгосрочную аренду. Продуманная планировка позволяет с комфортом разместить семью с детьми. Есть возможность пристроить летнюю террасу для отдыха за счет продавца. Дом построен из материала полистеролбетонных блоков, фундамент стоит на сваях глубиной 2,5 метра, поверх лежит железобетонная плита, снаружи полностью облицовка дома завершена. Участок прямоугольной, правильной формы. Оптимальный размер, за которым легко ухаживать, оставляя больше времени для отдыха. Дом расположен в коттеджном поселке, где есть школа, детский сад и две детские площадки. Вокруг поселка широкая лесополоса и река Истра. КП поселок расположен всего в 3 км от города Истра, где имеется вся необходимая городская инфраструктура. До КП комфортная транспортная доступность, 55 км от МКАД по Новорижскому или Волоколамскому шоссе. Будем рады ответить на все интересующие вас вопросы, звоните. Мы оперативно покажем дом в любое удобное время!










































































