Эксклюзив "Винидиктов и Партнёры"
Гор. округ Истра, Новорижское шоссе, охраняемый КП бизнес-класса "Подмосковные Просторы". Продается 2-х этажный дом из кирпича площадью 255,9 м2, на участке 15 соток, с центральными коммуникациями, отделка "под ключ".
ПРЕИМУЩЕСТВА
- Отличное состояние, объект готов к заселению, укомплектован необходимой техникой и мебелью.
- Современная планировка, панорамное остекление, в комнатах много естественного света.
- Престижная локация, благоприятная экология, на автомобиле в радиусе 10 мин доступна полная инфраструктура Новорижского шоссе.
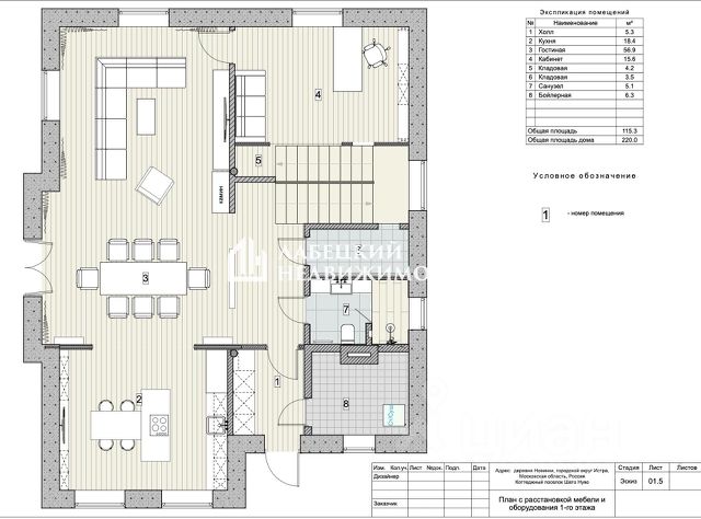
ПЛАНИРОВКА
На 1-м этаже: гостиная, кухня-столовая с выходом на террасу площадью 44 м2, спальня, санузел с душем, прихожая, котельная.
На 2-м этаже: холл, 2 мастер-спальни с своими санузлами, лоджия.
ОПИСАНИЕ КОТТЕДЖА
Фундамент дома свайно-ростверковый с ж/б плитами перекрытия, стены из красного щелевого кирпича, кровля из металлочерепицы.
Внутренняя отделка: стены отштукатурены и покрашены, пол из паркетной доски, керамогранита. Мебель, кухонный гарнитур изготовлены на заказ. Под плиткой в санузлах, кухни-столовой, гостиной установлены водяные теплые полы.
Для зонирования пространства, создания уютной атмосферы, применена схема многоуровневого освещения, включающая люстры, оригинальные светильники и светодиодные ленты.
Отопление дома газовым котлом, предусмотрен резервный электрический котел.
В доме все коммуникации центральные: электричество 15 кВт три фазы, магистральный газ, водоснабжение и канализация, оптоволоконный интернет.
Участок ровный, прямоугольной формы, сухой, огорожен забором. Вид разрешенного использования - для ИЖС, на дом получен почтовый адрес.
ОПИСАНИЕ КП
Поселок расположен в уютной и живописной локации, на луговых землях, его южная граница повторяет плавные изгибы реки Истры, с северо-востока поселок окружает, протянувшийся на несколько километров, зеленый массив соснового бора. Площадь всей территории 35 Га, дома с участками 14-16 соток стоят просторно, не мешают друг другу.
Поселок располагает благоприятными условиями для спокойной семейной жизни и отдыха на природе: круглосуточная охрана, видеонаблюдение, на всех 4-х въездах посты КПП. Всегда ухоженные широкие, освещаемые и с озеленением, внутрипоселковые асфальтированные дороги. Для прогулок выделены тротуарные дорожки, есть детская площадка, гостевая парковка.
Для сохранения естественного ландшафтного облика, все инженерные коммуникации скрыты под землёй. На улице отсутствуют внешние сети, столбы и провода.
Доброжелательные, респектабельные соседи, многие живут круглогодично, умеренные и прозрачные коммунальные платежи.
ИНФРАСТРУКТУРА
В 350 м продуктовый минимаркет с полным ассортиментом продуктов и напитков.
2 км до пос. Октябрьской Фабрики, с развитой инфраструктурой: ТЦ Октябрь, супермаркеты Мираторг, Магнит, Пятёрочка, современный гастрономический кластер с ресторанами и кафе: "Берлога", Суширига, Fabrrizio, Рубимбургер, пекарня БУLКИ, павильоны фермерских продуктов, морепродуктов, салоны красоты, ногтевая студия NailsLoft, пункты доставки OZON, Wildberries, СДЭК, аптеки, банкоматы, стройматериалы и пр.
Возможна доставка продуктов.
В 5 км "Лужки клуб-отель". В нем рестораны, СПА-центр, ультра-современный спортивный комплекс для детей и взрослых: стадионы, спортивные секции, теннисные корты, горнолыжный комплекс, 4 бассейна для всех возрастов, фитнес, ледовый дворец, кёрлинг.
10-15 мин до г. Истры, с городской инфраструктурой.
В КП "Подмосковные просторы" вы найдете уникальный баланс природы и близости городской инфраструктуры, что позволяет почувствовать гармонию жизни на природе, одновременно не лишая себя возможности пользоваться городскими преимуществами.
ТРАНСПОРТ
Удобный заезд с любого направления ЦКАД, в 5 км скоростное Новорижское ш. До г. Истра через Волоколамское ш. 10 км. От поселка до МКАД 37 км.
Сотрудничаем с коллегами 50/50!
Винидиктов и Партнеры - участник Ассоциации Агентств Элитной Недвижимости AREA!
Арт. 116304121