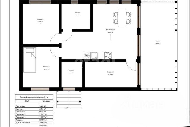
Подходит под семейную ипотеку Если мысль о чашке кофе с видом на пруд из окна стильного уютного дома вызывает улыбку и наполняет вас радостью, то вам стоит прочитать этот текст до конца. Всего в 23 км от города, на участке 10 соток правильной формы в окружении елей, берез и кленов, продается новый современный барнхаус. Дом не пресыщен излишествами архитектуры и идеально подходит человеку, ценящему натуральные материалы, стиль, продуманность планировки, геометрию простых форм и лаконичный дизайн. По границе участка расположен пруд наслаждаться которым вы будете на крытой деревянной террасе площадью 22 кв.м. или из комнат с панорамным остеклением. Компактный, 90 кв.м., дом с чистовой отделкой, порадует вас кухней-гостиной со вторым светом, тремя комнатами, просторным холлом и вторым входом с отдельной прихожей. В доме есть вся необходимая сантехника: душ, туалет и раковина. Дом построен по каркасной технологии, фундамент свайно-винтовой с металлической обвязкой. Пруд подходит не только для созерцания, но и для рыбалки (в пруду живут караси и толстолобики). А если вы поклонник отдыха в шезлонге на берегу вокруг пруда достаточно территории для организации собственной пляжной зоны. Юридические преимущества: продажа от собственника с использованием юридического лица, все документы готовы к сделке, подходит под семейную ипотеку Дополнительным фактором к принятию положительного решения о приобретении этого дома станут: - транспортная доступность (станции г. Дедовск, ст. Миитовская, МЦД-2 Нахабино 9 км; 22 км от МКАД по Волоколамскому или Новорижскому шоссе) и коммуникации - электричество 15 кВт заведено в дом - проходящие по границе участка: магистральный газ, оптоволоконный интернет и централизованная система водоснабжения и водоотведения (получены ТУ) - в непосредственной близости супермаркет, магазины, ТЦ, оперативно работают все доставки. Воспользуйтесь возможностью инвестировать в перспективный проект для аренды или создать идеальное место для отдыха своей семьи. Звоните для получения подробной информации и организации просмотра!










































































