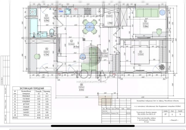
Новорижское или Волоколамское шоссе 55 км от МКАД, деревня Шишаиха, КП Шишаиха, вблизи п. Румянцево. Дом 87 кв. м, участок 6 соток, новый современный дом с подключенными и разведенными коммуникациями под чистовую отделку. Дом 87 кв. м, 1 этаж, каркасный, утепленный, перекрытия деревянные, окна пвх, кровля металлочерепица; внутри под чистовую отделку; отопление - электрический котел. Планировка: 1-й этаж - кухня-гостиная, 3 спальни, санузел, прихожая. Коммуникации - электричество 15 кВт, три фазы, подключено; колодец; септик. Подъездная дорога: асфальт + асфальтовая крошка, протяженность от асфальта 200 метров. Безопасность - общее ограждение, шлагбаум. Участок 6 соток / ИЖС / земли населенных пунктов / коттеджный поселок. Окружающая местность: Природа - лес в 400 метрах. Рядом поселковая инфраструктура: деревни Савельево. Общественный транспорт - ж/д станция Румянцево в 7 км. Административная принадлежность: Московская область, муниципальный округ Истра. Этот дом можно купить в ипотеку. Оперативный показ по предварительной договоренности. Быстрый выход на сделку. С нашей стороны — гарантия юридической чистоты объекта, прозрачности сделки, наличия всех документов. Юридическое сопровождение. Безопасность расчетов. Бесплатная консультация у менеджеров. Звоните!










































































